Alex Garage
Alex Garage
Functional and Stylish
Functional and Stylish
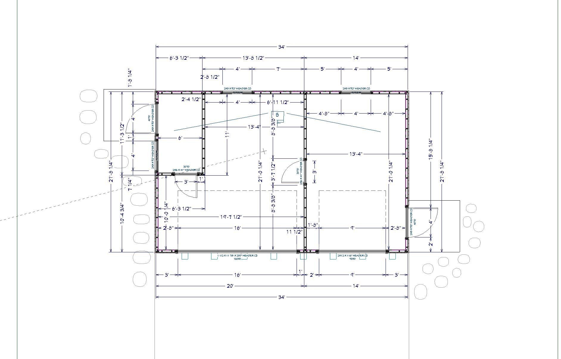
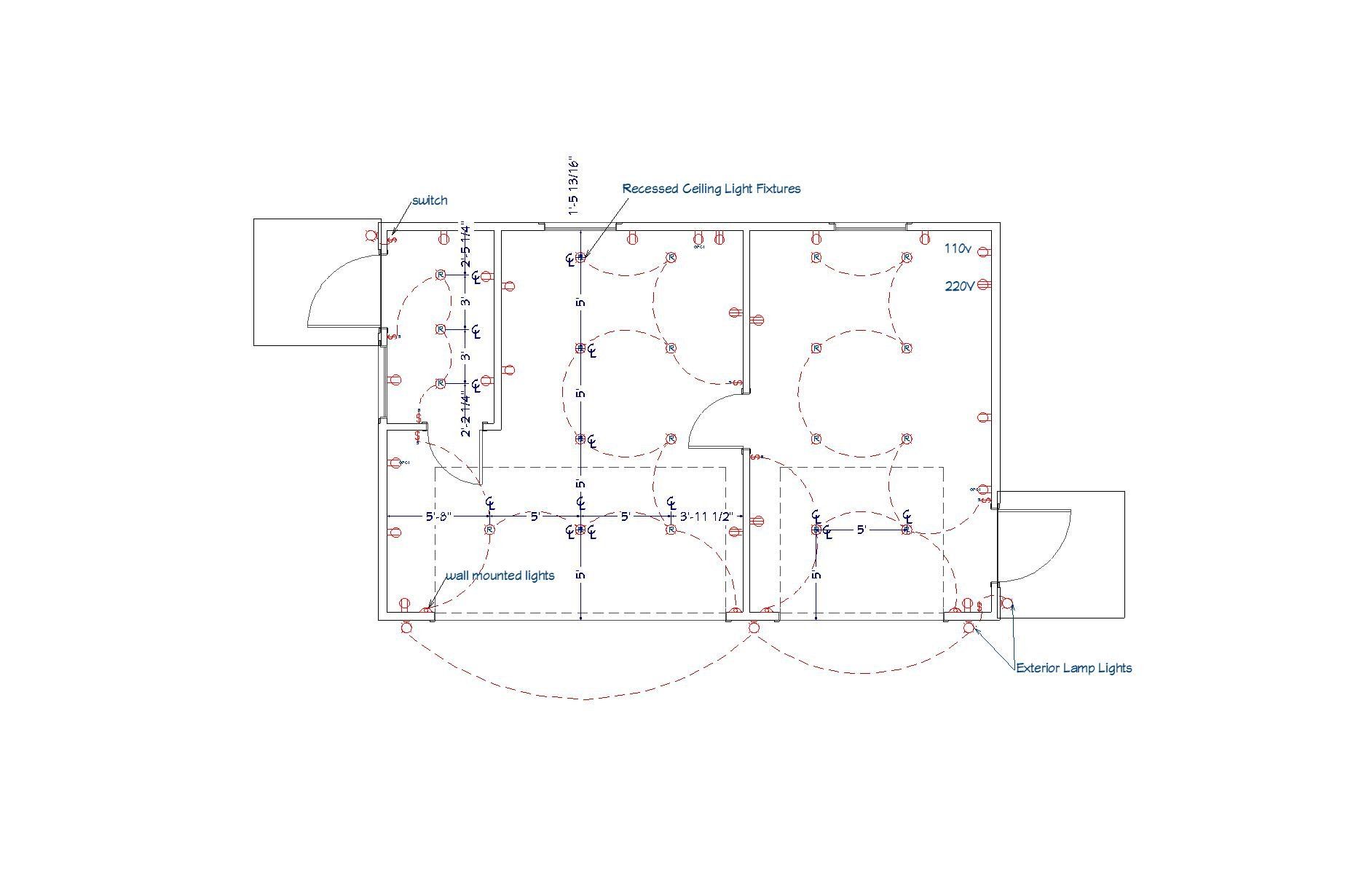
This client wanted to build a detached garage/shop/office, that matched the style of his home. It is a stucco exterior with aesthetic logs that protrude out, which are the same ones he has on his own home! The structure features a 3-car garage bay, separated by a partition wall, and an interior office space. Pictured above is also a glass house view, and a framing view, which are standard practice when you design with Ambition!



