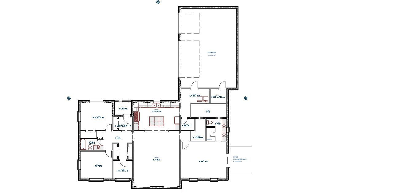
Romero Build
This client had a solid idea of a plan he wanted to bring to life. So from his original design, we adjusted it to meet his specific needs and bring it from lines on a paper to a beautiful rendering of what his future dream home will be.

No detail was spared in the designing of Mr. Romero's build. What is unique about this house, is that he will be utilizing ICF walls, think insulated block-like pieces that create a well-insulated home.




